Окна системы "Mira"

Окна системы "Mira"
  • Коэффициент сопротивления теплопередаче 0,7...1,1 м² × °С/Вт
  • Пропускание света65...75

Описание системы

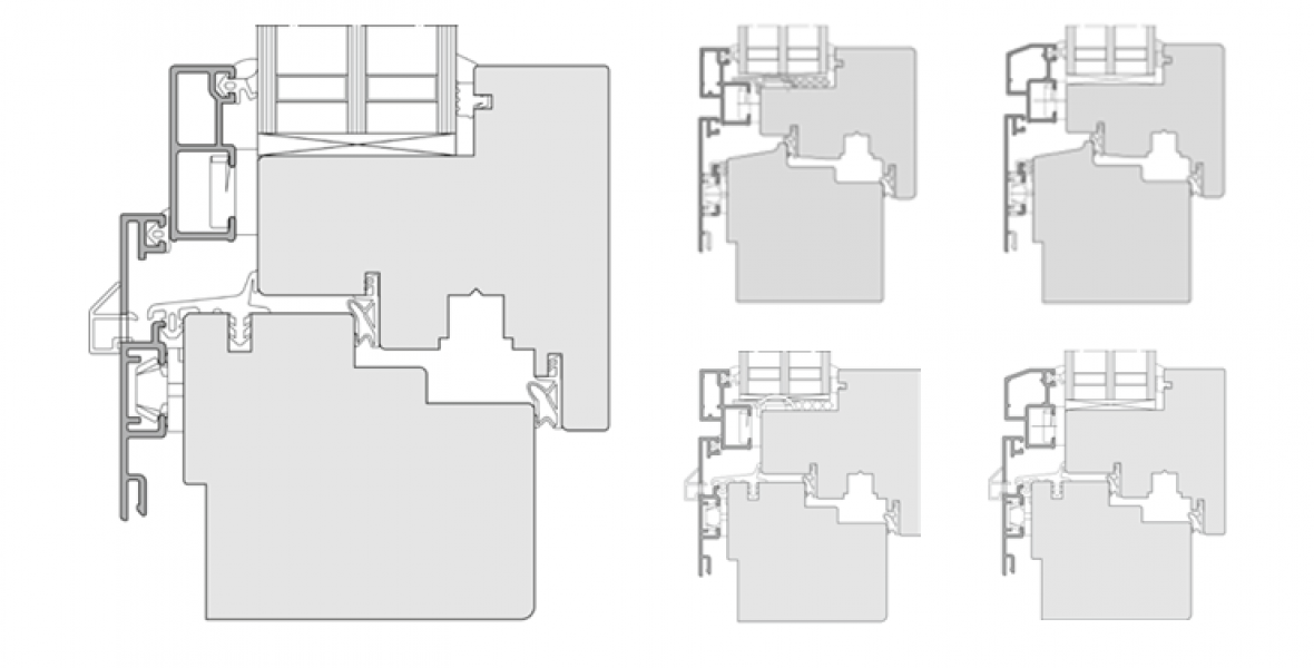
  • Система GUTMANN MIRA может быть выполнена как в конструкции с двойным и одиночным фальцем, так и в конструкции со скошенным фальцем
  • Возможность установки GUTMANN MIRA в классическом стиле в смещенном виде в стандартный поперечный разрез древесины в системе GUTMANN MIRA
  • Использование вертикальных створок дает возможность, не изменяя стандартный поперечный разрез деревянных створок в системе GUTMANN MIRA, установить конструкцию вровень с поверхностью
  • Узкие фасады створок придают системе законченный вид
  • Возможность использовать программу комплектующих деталей из системы GUTMANN MIRA без ограничений
  • Возможность приобретения рам со сварными соединениями или с прочными отштампованными угловыми соединениями

Система в разрезах

Окна системы "Mira"